Industrial Unit
Industrial Unit To Let Burton On Trent
PROPERTY ID: 148704
PROPERTY TYPE
Industrial Unit
STATUS
Available
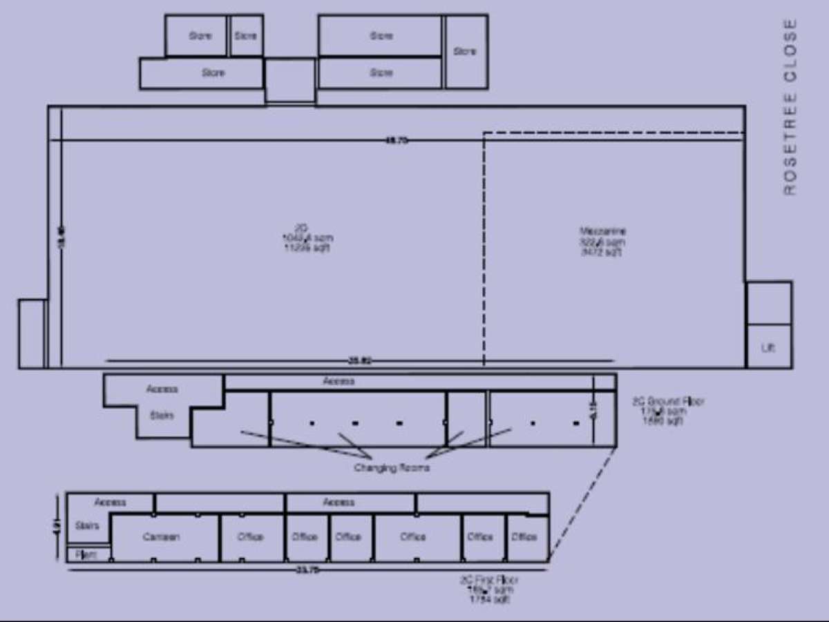
SIZE
14,707 sq.ft
Key Features
Comprising approximately 14,707 sq ft gross internal, with a clear internal height of 8m.
1 Level access door.
Part racked.
3 Phase power supply.
Large secure service yard.
Allocated car parking with further spaces available on the estate.
Property Details
Foremark Building Is An Affordable Warehouse Unit Suitable For Storage Over Ground And Mezzanine. The Unit Is Of Traditional Steel Frame Construction, With Over Cladded, Insulated Wall Panels.
About the Agent
Salloway Property Consultants Ltd
See Agent's Other PropertiesIndustrial Unit
POA
Foremark Buildings, Burton On Trent, DE15 0YZ
Industrial Unit -
Available
14,707 sq ft
1,366 sqm
Show phone number




















































































































