Industrial Unit To Let Derby
PROPERTY ID: 133081
PROPERTY TYPE
Industrial Unit
STATUS
Available
SIZE
4,693-14,079 sq.ft
Key Features
Property Details
Description
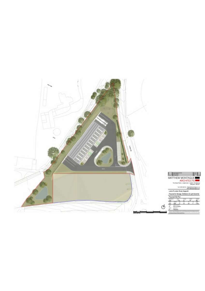
Proposed 3 New Commercial Units, Arranged In Building 1. Expressions Of Interest Invited On A Stp Basis. Units Available Separately At 4,693 Sq Ft Each, Or Total Building At 14,079 Sq Ft.
It Is Proposed The Units Be Constructed To Shell, Ready For Occupier Fit Out. Upon Completion Each Unit Shall Have: Power Floated Concrete Floor, 6m Eaves, Electric Up And Over Loading Door, 10% Natural Roof Lights & Ev Charging Point.
In A Large Fenced And Gated Site Providing 27 Parking Spaces Including 7 Ev Charging Points.
Vat
All Figures Are Quoted Exclusive Of Vat, We Are Advised The Property Is Registered For Vat Which Is Applicable At The Prevailing Rate.
Epc
The Units Will Be Assessed Upon Practical Completion. It Is Anticipated They Will Achieve An Epc Rating Of At Least A B.
Viewing
Please Contact Us Or Visit The Omeeto Website For Full Details. Omeeto Do Not Take Any Responsibility For Any Loss Or Injury Caused Whilst Carrying Out A Site Visit.






























































.jpg)






















































