Industrial Unit To Let Derby
PROPERTY ID: 147328
PROPERTY TYPE
Industrial Unit
STATUS
Available
SIZE
4,676 sq.ft
Key Features
Property Details
Description
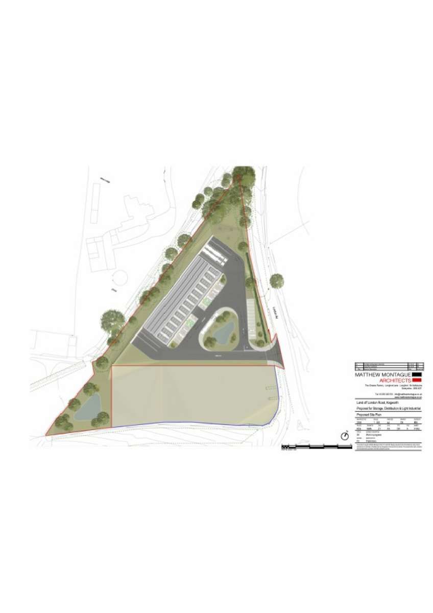
New Commercial Units. Expressions Of Interest Invited On A Stp Basis. From 4,676 To 14,028 Sq Ft.
It Is Proposed The Units Be Constructed To Shell, Ready For Occupier Fit Out. Upon Completion Each Unit Shall Have:
6 Meter Eaves.
5 Meter High, Ground Level Electric Up And Over Loading Doors.
10% Natural Roof Lights.
Mains Electric, Water And Drainage Connected.
Pv Panels.
Ev Charging Points.
Designated Parking (1 Space: 500 Sq Ft).
Adequate Space For Hgv Turning And Deliveries.
In A Large Fenced And Gated Site Providing 30 Parking Spaces With Ev Charging Points.
Vat
All Figures Are Quoted Exclusive Of Vat, We Are Advised The Property Is Registered For Vat Which Is Applicable At The Prevailing Rate.
Epc
The Units Will Be Assessed Upon Practical Completion. It Is Anticipated They Will Achieve An Epc Rating Of At Least A B.
Viewing
Please Contact Us Or Visit The Omeeto Website For Full Details. Omeeto Do Not Take Any Responsibility For Any Loss Or Injury Caused Whilst Carrying Out A Site Visit.





















































































































