Office To Let, Ripley

Office in Ripley
Office in Ripley
Office in Ripley
Office in Ripley
£375 / month
£4,500 pa

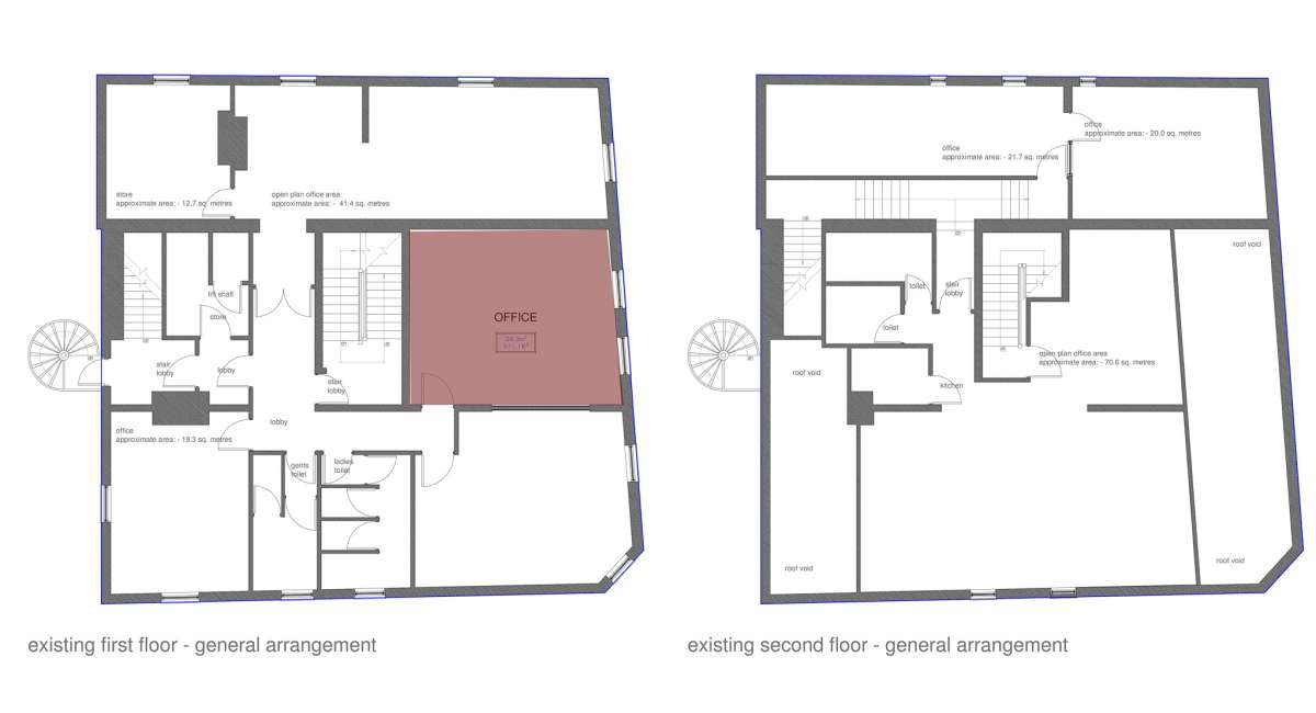
107a Thomas Henry House,1-5 Church Street, Ripley, DE5 3BU

Type Office
Status Available
Size 311 sq ft

Key Features

  • Inclusive rental
  • Onsite parking
  • Ripley Town Centre
  • Local, reputable landlord
  • Most suites qualify for 100% rates relief, subject to status

Property Details

Description

Easy In Easy Out. Bills Included. Office With Parking, Central Heating And Led Lights. Situated On The First Floor With Shared Kitchen And Wc Facilities. Interconnecting Office 107 Also Available If More Space Required.

Externally There Is A Car Park And Single Designated Space.

Viewing

Please Contact Us Or Visit The Omeeto Website For Full Details And A Virtual Tour. Physical Viewings With Proceedable Parties Can Be Arranged On Request By Contacting Our Commercial Property Agents. Omeeto Do Not Take Any Responsibility For Any Loss Or Injury Caused Whilst Carrying Out A Site Visit.

Vat

All Figures Are Quoted Exclusive Of Vat, We Are Advised The Property Is Registered For Vat Which Is Applicable At The Prevailing Rate.

Epc

D(92)
Advertisement
Omeeto Ltd
Omeeto Ltd View all properties
Office To Let, Ripley
£375 / month
£4,500 pa

107a Thomas Henry House,1-5 Church Street, Ripley, DE5 3BU

Office · Available · 311 sq ft

Property ID: 75998

Send Enquiry
Omeeto Ltd
Omeeto Ltd View all properties
Advertisement

Make an Enquiry

Boxpod will only use your details to send an enquiry to the advertiser and prompt a response. By clicking Send Enquiry, you agree to Boxpod's Privacy Policy.

Make an Enquiry

Omeeto Ltd
Omeeto Ltd

Boxpod will only use your details to send an enquiry to the advertiser and prompt a response. By clicking Send Enquiry, you agree to Boxpod's Privacy Policy.

Call