Retail/Shop To Let, Ipswich
4 photos
Property ID: 63276
£1,188 / month
£14,250 pa
17 St Stephens Lane, Ipswich, IP1 1DP
Type
Retail/Shop
Status
Under Offer
Size
1,907 sq ft
Key Features
- Attractive two storey retail premises with basement
- Net internal floor area 1,907 sq ft (177.18 sq m)
- Rent £14,250 per annum exclusive
- Available for immediate occupation
Property Details
Ipswich Is The County Town Of Suffolk With A Resident Population Of Approximately 130,000 And A Retail Catchment Of Almost 350,000. The Town Is Situated Approximately 79 Miles North East Of Central London, 43 Miles South Of Norwich And 18 Miles North East Of Colchester.
The Property Is Situated To The Southern End Of St Stephens Lane, Opposite The Buttermarket Shopping Centre And Close To The Junction With Old Cattle Market And Dog's Head Street.
Description
The Property Comprises A Grade Ii Listed Retail Premises Arranged Upon Two Floors, Together With Basement Storage.
It Is Understood That The Property Was Originally Merchants House Built In About 1470, Before Trading As The Sun Inn Public House In The 19th Century And Subsequently Being Used As A Retail Premises.
The Property Benefits From A Fully Glazed Retail Frontage And Many Of The Original Character Features Remain.
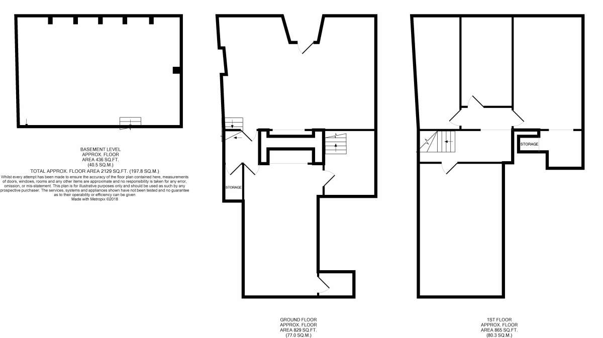
Accommodation [approximate Net Internal Floor Areas]
Ground Floor
Main Retail: 400 Sq Ft [ 37.19 Sq M]
Rear Office/store: 285 Sq Ft [ 26.48 Sq M]
First Floor
Stores/offices: 844 Sq Ft [ 78.38 Sq M]
Basement
Store: 378 Sq Ft [ 35.12 Sq M]
Total Net Internal Floor Area: 1,907 Sq Ft [ 177.18 Sq M]
Business Rates
According To The Valuation Office Agency Website, The Premises Has A Rateable Value Of £13,750. The Rates Payable (2024/25) Is £6,861.25 Per Annum Based On The Current Ubr For 2024/25 Of £0.499.
Small Business Rate Relief May Be Available Providing Some Relief Subject To Eligibility. All Interested Parties Should Make Their Own Enquires With The Local Rating Authority In Order To Verify Their Rates Liability.
Services
It Is Understood That The Premises Is Connected To Mains Electricity, Water And Drainage.
We Have Not Tested Any Of The Services And All Interested Parties Should Rely Upon Their Own Enquiries With The Relevant Utility Companies In Connection With The Availability And Capacity Of All Those Serving The Property Including It And
Telecommunications.
Planning
We Understand That The Premises Has Permission For Retail Use.
All Interested Parties Should Make Their Own Enquiries With The Local Planning Authority.
Local Authority
Ipswich Borough Council, Grafton House, 15-17 Russell Road, Ipswich, Ip1 2de
Tel: 01473 432000
Terms
The Premises Is Available On A New Full Repairing And Insuring Business Lease Upon Terms To Be Agreed At An Initial Rent Of £14,250 Per Annum Exclusive.
Vat Is Not Applicable To The Rent.
Legal Costs
Each Party Is To Be Responsible For Their Own Legal Costs.
The Property Is Situated To The Southern End Of St Stephens Lane, Opposite The Buttermarket Shopping Centre And Close To The Junction With Old Cattle Market And Dog's Head Street.
Description
The Property Comprises A Grade Ii Listed Retail Premises Arranged Upon Two Floors, Together With Basement Storage.
It Is Understood That The Property Was Originally Merchants House Built In About 1470, Before Trading As The Sun Inn Public House In The 19th Century And Subsequently Being Used As A Retail Premises.
The Property Benefits From A Fully Glazed Retail Frontage And Many Of The Original Character Features Remain.
Accommodation [approximate Net Internal Floor Areas]
Ground Floor
Main Retail: 400 Sq Ft [ 37.19 Sq M]
Rear Office/store: 285 Sq Ft [ 26.48 Sq M]
First Floor
Stores/offices: 844 Sq Ft [ 78.38 Sq M]
Basement
Store: 378 Sq Ft [ 35.12 Sq M]
Total Net Internal Floor Area: 1,907 Sq Ft [ 177.18 Sq M]
Business Rates
According To The Valuation Office Agency Website, The Premises Has A Rateable Value Of £13,750. The Rates Payable (2024/25) Is £6,861.25 Per Annum Based On The Current Ubr For 2024/25 Of £0.499.
Small Business Rate Relief May Be Available Providing Some Relief Subject To Eligibility. All Interested Parties Should Make Their Own Enquires With The Local Rating Authority In Order To Verify Their Rates Liability.
Services
It Is Understood That The Premises Is Connected To Mains Electricity, Water And Drainage.
We Have Not Tested Any Of The Services And All Interested Parties Should Rely Upon Their Own Enquiries With The Relevant Utility Companies In Connection With The Availability And Capacity Of All Those Serving The Property Including It And
Telecommunications.
Planning
We Understand That The Premises Has Permission For Retail Use.
All Interested Parties Should Make Their Own Enquiries With The Local Planning Authority.
Local Authority
Ipswich Borough Council, Grafton House, 15-17 Russell Road, Ipswich, Ip1 2de
Tel: 01473 432000
Terms
The Premises Is Available On A New Full Repairing And Insuring Business Lease Upon Terms To Be Agreed At An Initial Rent Of £14,250 Per Annum Exclusive.
Vat Is Not Applicable To The Rent.
Legal Costs
Each Party Is To Be Responsible For Their Own Legal Costs.
Location
Fenn Wright LLP
View all properties
Make an Enquiry
Fenn Wright LLP