Industrial Unit To Let, Ivybridge
4 photos
Property ID: 151289
£12,500 / month
£150,000 pa
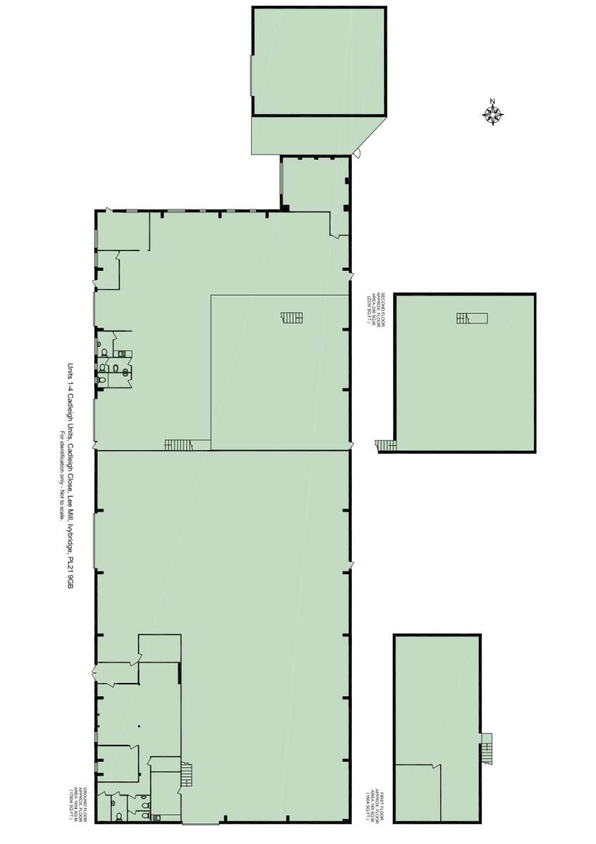
1-3 Cadleigh Close, Ivybridge, PL21 9GB
Type
Industrial Unit
Status
Available
Size
18,513 sq ft
Key Features
- SUBSTANTIAL DETACHED INDUSTRIAL UNIT WITH TARMAC YARD
- May Split with sizes from 8,185 - 18,073 SqFt ( 1,679 SqM )
- DESIRABLE INDUSTRIAL / DISTRIBUTION SITE IN LEE MILL
- OFFICES, WELFARE AND ADDITIONAL WORKSHOP
- MINIMUM EAVES 5.22M
- EPC A (23)
Property Details
Available As A Whole Or Split.
lee Mill Industrial Estate, Situated Near Ivybridge, Is Generally Regarded As A Leading Industrial Estate In The South Hams. Plymouth Is Located 10 Miles To The West & Exeter 30 Miles To The East, With Excellent Road Access Via The A38.
the Warehouse Has A Min.eaves Height Of 5.22m (7.83m To Underside Of Apex) Giving Excellent Height For Modern Storage & Distribution Users. The Unit Is Split Internally But Could Be Opened If Required. Access Is Via 3 Sectional Goods Loading Doors Which Open Directly To Delivery Yard. External Dock Leveller Which Unloads Into Roller Shutter To Eastern Gable Wall. Warehouse 1&2 Offers Industrial Space With Office & Is Currently Fitted With A Storage Mezzanine To One Side, Approx.2,259sq.ft / 210sq.m. Warehouse 3 Benefits From A Warehouse With Modern Office Currently Designed As Open Plan Space With Managers Office, Staff Welfare, Wcs, With Mezzanine Over The Office. There Is A Further Detached Workshop Suitable For A Variety Of Uses
lee Mill Industrial Estate, Situated Near Ivybridge, Is Generally Regarded As A Leading Industrial Estate In The South Hams. Plymouth Is Located 10 Miles To The West & Exeter 30 Miles To The East, With Excellent Road Access Via The A38.
the Warehouse Has A Min.eaves Height Of 5.22m (7.83m To Underside Of Apex) Giving Excellent Height For Modern Storage & Distribution Users. The Unit Is Split Internally But Could Be Opened If Required. Access Is Via 3 Sectional Goods Loading Doors Which Open Directly To Delivery Yard. External Dock Leveller Which Unloads Into Roller Shutter To Eastern Gable Wall. Warehouse 1&2 Offers Industrial Space With Office & Is Currently Fitted With A Storage Mezzanine To One Side, Approx.2,259sq.ft / 210sq.m. Warehouse 3 Benefits From A Warehouse With Modern Office Currently Designed As Open Plan Space With Managers Office, Staff Welfare, Wcs, With Mezzanine Over The Office. There Is A Further Detached Workshop Suitable For A Variety Of Uses
Location
Listers Property Consultants Ltd
View all properties
Make an Enquiry
Listers Property Consultants Ltd