Office To Let, Wantage
2 photos
Property ID: 151254
£1,667 / month
£20,000 pa
Brooklands, Wantage, OX12 8DF
Type
Office
Status
Available
Size
0 sq ft
Key Features
- Spacious and versatile business premises
- Newbury Street, Wantage
- The rear of a three storey plus basement of large detached commercial building
- Off-street parking
- Use Class E Commercial, Business and Service
- Some uses automatically permitted by Use Class E may require the Landlord’s consent
Property Details
General description
The rear x 3 storey plus basement part of a large, detached commercial building with off-road parking.  Believed to date from the Victorian era and set in the town‘s Conservation Area, the building is set back from Newbury Street (A338) just south of the central shopping area and sits in approximately 0.37 ace  of walled grounds. .   
Permitted use
The historic use of the building is as offices, which now falls under Use Class E Commercial, Business and Service. Some uses automatically permitted by Use Class E may require the Landlord‘s consent, please check with us before viewing.
Location
The historic market town of Wantage, along with nearby Grove, is located in affluent southern Oxfordshire approximately 15 miles southwest of Oxford at the junction of the A338 with the A417 and approx. 6 miles west of the A34 &ldquoMilton interchange&rdquo near Didcot. Both are growing rapidly in population terms, set to continue for several years yet.
The building is on the west side of Newbury Street (A338) about 60 yards south of the traffic light crossroads of Portway (B4507 west) and Ormond Road (east) with predominantly residential neighbours. Post code OX12 8DF
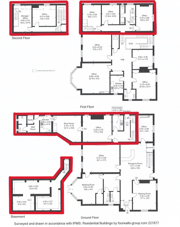
The accommodation (See floor plan for dimensions)
On the ground floor – Pedestrian access is from Woodlands Brook off Newbury Street. An entrance hall with a kitchen off first leads down to the re-furbished basement and to the upper floors and to two walk through offices which in turn lead to a kitchen area and rear lobby with potential for a further WC to be installed.
On the first floor – 3 offices plus a WC. 2 x sets of stairs at either end then lead up to the&hellip 
Second floor – With 1 enclosed office, an open plan office/landing area and a small store room.
The Basement – re-rurbished, damp proofed and accessed via concealed steps off the entrance hallway, average head height and comprising 3 chambers.
Outside – Three parking spaces are reserved in the car park off Newbury Street.
Price guide and terms
Rental only, under a full repairing and insuring lease of negotiable term for which offers in the region of £20,000pa/£1,666.67pcm exclusive of any other tenant‘s outgoings are invited. An initial period of reduced rent can be discussed, depending on the length of term before a tenant‘s break option can be exercised.  A commercial tenancy application and references are required, at a cost of £120.00 incl. VAT.     
VAT
We understand that VAT is not payable in addition.
Business Rates
Rateable Value – (April 2026) £to be assessed. For general information the RV for the whole building (April 2026) is £42,750.
Services
Mains water, gas, electricity and drainage are connected to the building. Heating is presently partially from a gas fired boiler and partially by electric panel heaters. Telephone/broadband services have previously been connected. The incoming tenant must effect their own connections.
EPC rating (whole building)
E/109. Full details are available on request.
Availability
Immediately on completion of formalities subject to any necessary alterations to the building.    
Local planning and rating authority
Vale of White Horse District Council, Abbey House, Abbey Close, Abingdon OX14 3SE
Tel 01235 422422   
Viewing
By prior appointment with Green & Co Commercial and Development Agency, during usual business hours Monday to Friday. only Tel. 01235 763561 (ref. RH) or email robin.heath@greenand.co.uk
Agent‘s notes
1. The front part of the building is currently available, offers for the whole building are invited.
2. The freehold interest in the building is not for sale.    
The rear x 3 storey plus basement part of a large, detached commercial building with off-road parking.  Believed to date from the Victorian era and set in the town‘s Conservation Area, the building is set back from Newbury Street (A338) just south of the central shopping area and sits in approximately 0.37 ace  of walled grounds. .   
Permitted use
The historic use of the building is as offices, which now falls under Use Class E Commercial, Business and Service. Some uses automatically permitted by Use Class E may require the Landlord‘s consent, please check with us before viewing.
Location
The historic market town of Wantage, along with nearby Grove, is located in affluent southern Oxfordshire approximately 15 miles southwest of Oxford at the junction of the A338 with the A417 and approx. 6 miles west of the A34 &ldquoMilton interchange&rdquo near Didcot. Both are growing rapidly in population terms, set to continue for several years yet.
The building is on the west side of Newbury Street (A338) about 60 yards south of the traffic light crossroads of Portway (B4507 west) and Ormond Road (east) with predominantly residential neighbours. Post code OX12 8DF
The accommodation (See floor plan for dimensions)
On the ground floor – Pedestrian access is from Woodlands Brook off Newbury Street. An entrance hall with a kitchen off first leads down to the re-furbished basement and to the upper floors and to two walk through offices which in turn lead to a kitchen area and rear lobby with potential for a further WC to be installed.
On the first floor – 3 offices plus a WC. 2 x sets of stairs at either end then lead up to the&hellip 
Second floor – With 1 enclosed office, an open plan office/landing area and a small store room.
The Basement – re-rurbished, damp proofed and accessed via concealed steps off the entrance hallway, average head height and comprising 3 chambers.
Outside – Three parking spaces are reserved in the car park off Newbury Street.
Price guide and terms
Rental only, under a full repairing and insuring lease of negotiable term for which offers in the region of £20,000pa/£1,666.67pcm exclusive of any other tenant‘s outgoings are invited. An initial period of reduced rent can be discussed, depending on the length of term before a tenant‘s break option can be exercised.  A commercial tenancy application and references are required, at a cost of £120.00 incl. VAT.     
VAT
We understand that VAT is not payable in addition.
Business Rates
Rateable Value – (April 2026) £to be assessed. For general information the RV for the whole building (April 2026) is £42,750.
Services
Mains water, gas, electricity and drainage are connected to the building. Heating is presently partially from a gas fired boiler and partially by electric panel heaters. Telephone/broadband services have previously been connected. The incoming tenant must effect their own connections.
EPC rating (whole building)
E/109. Full details are available on request.
Availability
Immediately on completion of formalities subject to any necessary alterations to the building.    
Local planning and rating authority
Vale of White Horse District Council, Abbey House, Abbey Close, Abingdon OX14 3SE
Tel 01235 422422   
Viewing
By prior appointment with Green & Co Commercial and Development Agency, during usual business hours Monday to Friday. only Tel. 01235 763561 (ref. RH) or email robin.heath@greenand.co.uk
Agent‘s notes
1. The front part of the building is currently available, offers for the whole building are invited.
2. The freehold interest in the building is not for sale.    
Location
Green & Co Ltd
View all properties
Make an Enquiry
Green & Co Ltd