Retail/Shop To Let, Chellaston
4 photos
£2,667 / month
£32,000 pa
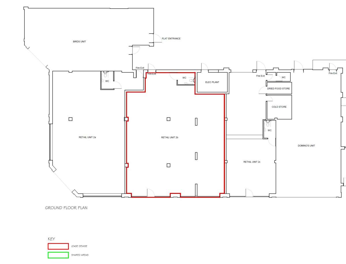
2b Swarkestone Road, Chellaston, DE73 6UF
Type
Retail/Shop
Status
Available
Size
1,544 sq ft
Key Features
- Part of former Co-Op food store
- Works underway to sub divide into 3 new units
- Lat remaining unit
- Well located in neighbourhood centre
- Neighbouring Birds and Domino's Pizza
- Suitable for a variety of high street uses
Property Details
Description
Last Remining Shop. 3 New Units Being Created From Former Co-op Convenience Store. Prime Position In Neighbourhood Centre Next To Birds Bakery And Domino's. Being Offered As A Shell Ready For Occupier Fit Out.
Some Staff Parking To The Rear With Loading. Additional Onsite Pay And Display Or Free Street Parking
Viewing
Please Contact Us Or Visit Www.omeeto.co.uk For Full Details. Physical Viewings With Proceedable Parties Can Be Arranged On Request By Contacting Our Commercial Property Agents. Omeeto Do Not Take Any Responsibility For Any Loss Or Injury Caused Whilst Carrying Out A Site Visit.
Service Charge
Is Payable For The Running, Maintenance And Up Keep Of The Building Structure, Common, Shared And External Areas.
Vat
All Figures Are Quoted Exclusive Of Vat, We Are Advised The Property Is Registered For Vat Which Is Applicable At The Prevailing Rate.
Epc
The Existing Building Is Currently Assessed As B(47). A New Epc Shall Be Commissioned For Completion On The Proposed Units.
Last Remining Shop. 3 New Units Being Created From Former Co-op Convenience Store. Prime Position In Neighbourhood Centre Next To Birds Bakery And Domino's. Being Offered As A Shell Ready For Occupier Fit Out.
Some Staff Parking To The Rear With Loading. Additional Onsite Pay And Display Or Free Street Parking
Viewing
Please Contact Us Or Visit Www.omeeto.co.uk For Full Details. Physical Viewings With Proceedable Parties Can Be Arranged On Request By Contacting Our Commercial Property Agents. Omeeto Do Not Take Any Responsibility For Any Loss Or Injury Caused Whilst Carrying Out A Site Visit.
Service Charge
Is Payable For The Running, Maintenance And Up Keep Of The Building Structure, Common, Shared And External Areas.
Vat
All Figures Are Quoted Exclusive Of Vat, We Are Advised The Property Is Registered For Vat Which Is Applicable At The Prevailing Rate.
Epc
The Existing Building Is Currently Assessed As B(47). A New Epc Shall Be Commissioned For Completion On The Proposed Units.
Location
Advertisement
Omeeto Ltd
View all properties
Make an Enquiry
Omeeto Ltd