Office To Let, Wythenshawe

Office in Wythenshawe
Office in Wythenshawe
Office in Wythenshawe
Office in Wythenshawe

Property ID: 143510

£500 / month
£6,000 pa

Ledson Road, Wythenshawe, M23 9GP

Type Office
Status Available
Size 500 - 6,929 sq ft

Key Features

  • Open Plan
  • Fitted Kitchen
  • Shower Facilities
  • 25 Car Parking Spaces

Property Details

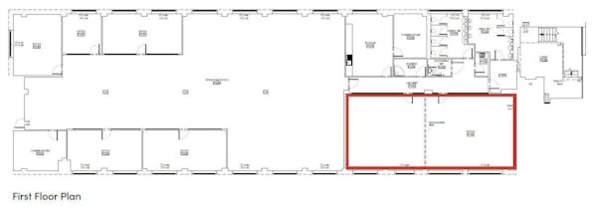
Modern Office Space That Offers Self-contained Ground Floor Entrance. The Open Plan Layout Fosters Collaboration And Flexibility, Whilst The Space Also Includes Private Offices With Glazed Portioning For Added Privacy. A Separate Boardroom With Glazed Portioning Is Available For Meetings.

The Office Benefits From Ceiling-mounted Light Fittings And Perimeter Trunking For Efficient Cable Management. The Office Has A Fully Fitted Kitchen Along With Wc And Shower Facilities. The Entire Site Is Under 24-hour Cctv Surveillance And Electric Gates For Added Security. The Office Is Fully Dda-compliant. The Property Also Includes 25 Parking Spaces.

The Accommodation Has Been Measured On A Net Internal Area Basis And Is Approx. 6,929 Sq Ft (643.73 Sq M) And Can Be Subdivided To Provide A Number Of Self-contained Fully Fitted Office Suites From 200 Sq Ft Upwards, Subject To The Final Agreed Specification.
Fisher German LLP- Manchester
Fisher German LLP- Manchester View all properties

Property ID: 143510

Office To Let, Wythenshawe
£500 / month
£6,000 pa

Ledson Road, Wythenshawe, M23 9GP

Office · Available · 500 - 6,929 sq ft

Send Enquiry
Fisher German LLP- Manchester
Fisher German LLP- Manchester View all properties

Make an Enquiry

Boxpod will only use your details to send an enquiry to the advertiser and prompt a response. By clicking Send Enquiry, you agree to Boxpod's Privacy Policy.

Make an Enquiry

Fisher German LLP- Manchester
Fisher German LLP- Manchester

Boxpod will only use your details to send an enquiry to the advertiser and prompt a response. By clicking Send Enquiry, you agree to Boxpod's Privacy Policy.

Call