Office To Let, Congleton

Office in Congleton
Office in Congleton
Office in Congleton
Office in Congleton
£175 / month
£2,100 pa

Greenfield Farm Industrial Estate, Congleton, CW12 4TR

Type Office
Status Available
Size 0 sq ft

Key Features

  • LOCK UP OFFICE SUITE
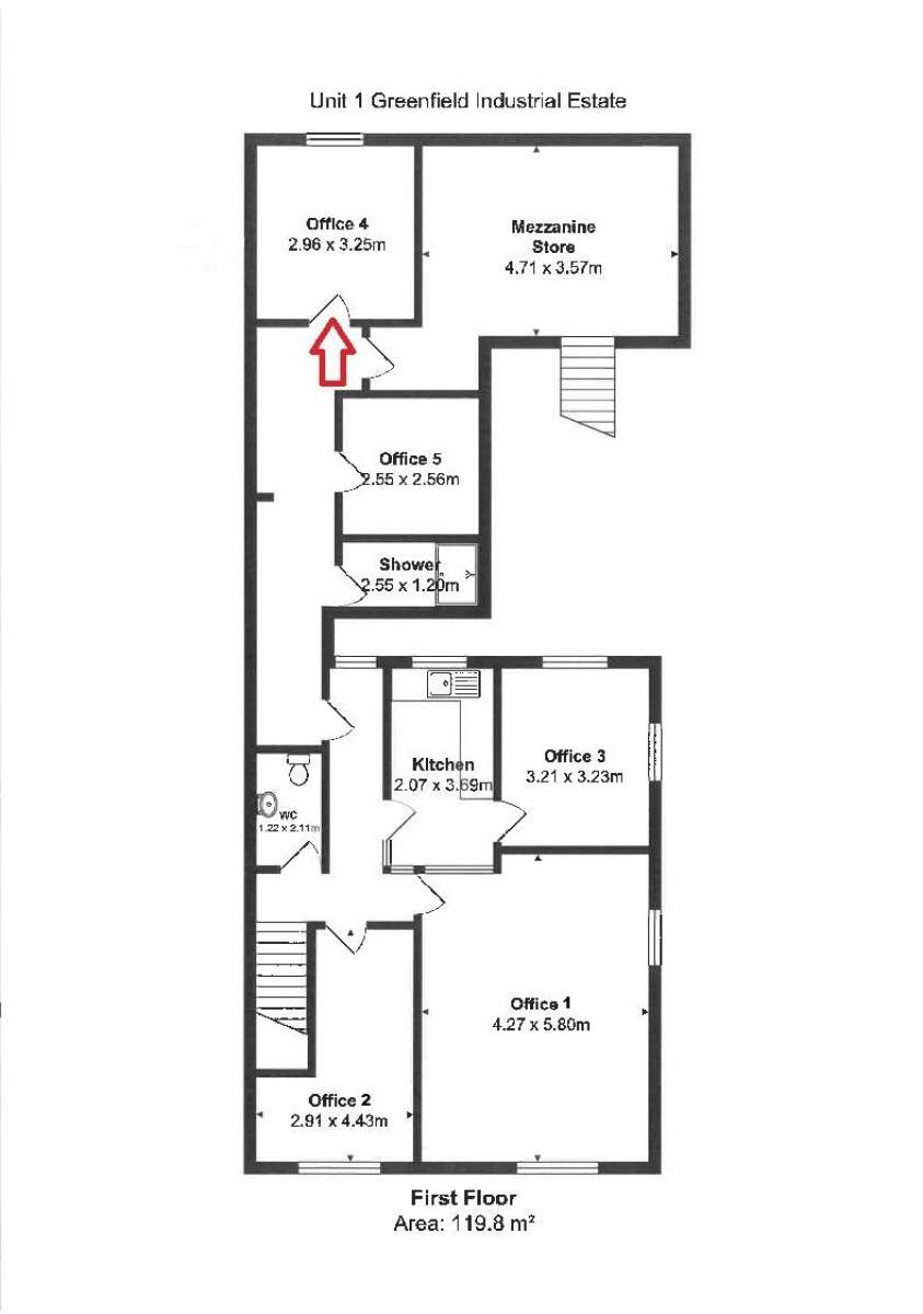
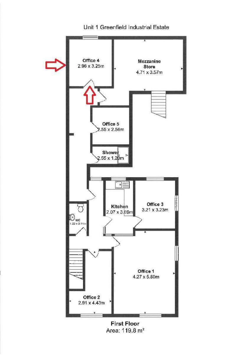
  • 9'9" x 10' 8" (2.96m x 3.25m)
  • ALL INCLUSIVE RENT
  • 24 HOUR ACCESS

Property Details

smart, Self-contained Office Suite – £175 + Vat Per Month (all-inclusive)
A Great Opportunity To Secure A Modern, Private Office Within The Sought-after greenfield Industrial & Office Estate, Ideally Located On The Edge Of Congleton With Excellent Links To M6 Junctions 17, 18 And 19.
This First-floor Suite Measures 9'9" X 10'8" (2.96m X 3.25m) And Offers 24-hour Access Plus A Simple all-inclusive Rent Covering:

Wi-fi
Heating
Power
Lighting
Use Of High-quality Communal Kitchen And W.c. Facilities

Accessed Via A Communal Entrance And Staircase, The Suite Benefits From Its Own lockable Door, Providing A Secure, Professional Workspace Perfect For A Small Business, Start-up Or Sole Trader.
A Clean, Modern Office In A Thriving Business Location — Ready For Immediate Occupation
Advertisement
Timothy A Brown Estate Agents
Timothy A Brown Estate Agents View all properties
Office To Let, Congleton
£175 / month
£2,100 pa

Greenfield Farm Industrial Estate, Congleton, CW12 4TR

Office · Available · 0 sq ft

Property ID: 134489

Send Enquiry
Timothy A Brown Estate Agents
Timothy A Brown Estate Agents View all properties
Advertisement

Make an Enquiry

Boxpod will only use your details to send an enquiry to the advertiser and prompt a response. By clicking Send Enquiry, you agree to Boxpod's Privacy Policy.

Make an Enquiry

Timothy A Brown Estate Agents
Timothy A Brown Estate Agents

Boxpod will only use your details to send an enquiry to the advertiser and prompt a response. By clicking Send Enquiry, you agree to Boxpod's Privacy Policy.

Call