Industrial Unit To Let Lincoln
PROPERTY ID: 147162
PROPERTY TYPE
Industrial Unit
STATUS
Available
SIZE
5,014 sq.ft
Key Features
Property Details
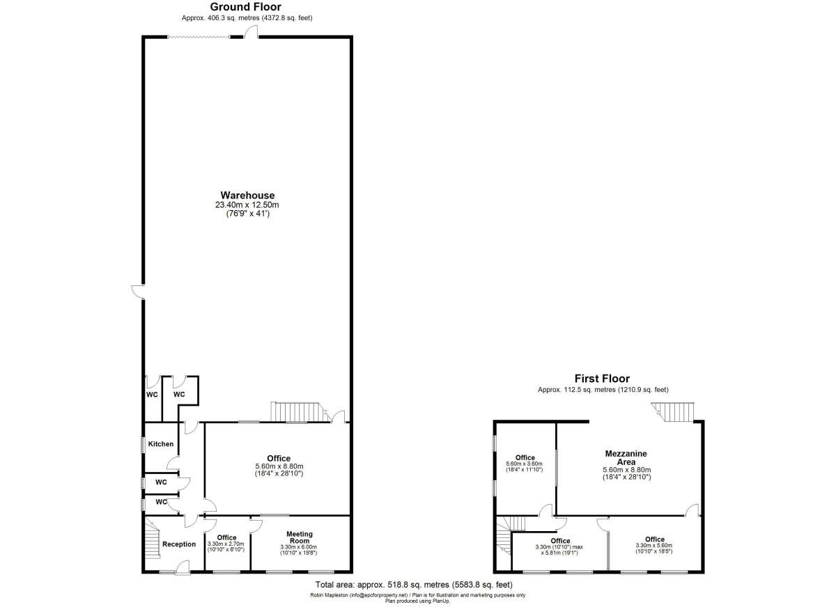
The property comprises a Warehouse/Industrial Unit with Offices to the front of steel frame construction with part brick walls covered with insulated cladding above and to the roof. The Office Space comprises an Entrance/Hallway, Reception Area, 2 Offices/Meeting Rooms, Kitchen and WC's on the Ground Floor with two Offices/Meeting rooms and a Mezzanine above. The Warehouse/Industrial Unit has an additional WC, electric roller shutter door, concrete flooring, LED lighting, 3 phase electricity supply and a minimum eaves height of approximately 5.4m and maximum ridge height of approximately 6.2m.
Externally there is parking to front for 4 cars and a fenced Yard to the rear.
Steel Portal Framed Warehouse/industrial Unit With Offices.
Parking To The Front And A Fenced Yard To The Rear.
Gia From Approx 5,014 Sq Ft (465.8 M2)
Unit To Be Made Available By Way Of New Effective Fri Lease
Warehouse/industrial Unit With Offices & Yard
Unit 1, Whisby Way, Lincoln Ln6 3lq
Rent: £40,000 P.a.x. Leasehold
Warehouse/industrial Unit With Offices & Yard
Unit 1, Whisby Way, Lincoln Ln6 3lq
Rent: £40,000 P.a.x. Leasehold
Detailed Description
The Property Comprises A Warehouse/industrial Unit With Offices To The Front Of Steel Frame Construction With Part Brick Walls Covered With Insulated Cladding Above And To The Roof. The Office Space Comprises An Entrance/hallway, Reception Area, 2 Offices/meeting Rooms, Kitchen And Wc's On The Ground Floor With Two Offices/meeting Rooms And A Mezzanine Above. The Warehouse/industrial Unit Has An Additional Wc, Electric Roller Shutter Door, Concrete Flooring, Led Lighting, 3 Phase Electricity Supply And A Minimum Eaves Height Of Approximately 5.4m And Maximum Ridge Height Of Approximately 6.2m.
Externally There Is Parking To Front For 4 Cars And A Fenced Yard To The Rear.
Location
Whisby Way Is Located Off Whisby Road Which Leads From The A46 Which Bypasses The City Of Lincoln To Doddington Road As Well As North Hykeham. The Surrounding Area Is Predominately Commercial In Nature And Home To Many Of The City's Manufacturing And Logistical Businesses
For A Minimum Term Of 5 Years.
Well Located Approx 0.6 Miles From A46.















































































.jpg)




-s.jpg)































